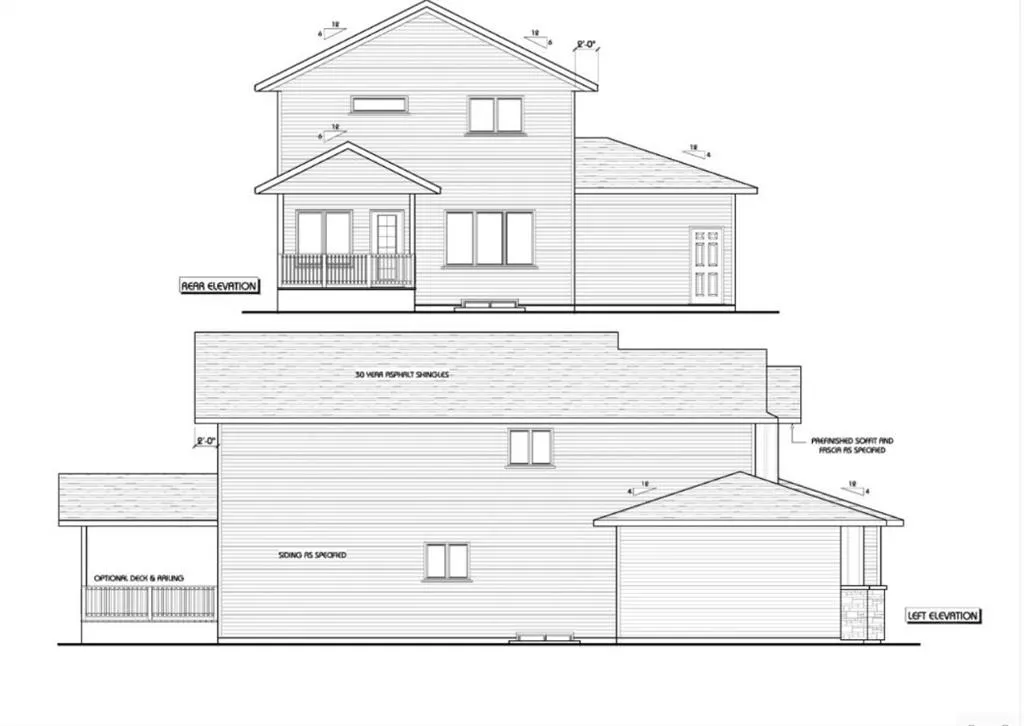
Property Type
House, 2 Storey
Parking
Triple Garage Attached , Triple Garage Attached 5 parking
MLS #
A2268213
Size
1910 sqft
Basement
None
Listed on
-
Lot size
-
Days on Market
-
Year Built
2026
Maintenance Fee
-
